EHR 300 N Ekonovent CTR08-PH bytová větrací jednotka s rekuperací teplaRekuperační jednotky
Katalogový list | ![]() | Návod k použití | ![]() | 2D/3D CAD | 60.148 Kč | Toto zboží není možno objednat přes internet, kontaktujte naše obchodní oddělení nebo navštivte naše pobočky. |
Technické parametry
| max. průtok [m3/h] | příkon ventilátorů [W] | napětí [V, Hz] | max. proud ventilátorů [A] | max. proud jednotky [A] | okolní teplota [˚C] | hmotnost [kg] |
|---|---|---|---|---|---|---|
| 360 | 2x85 | 230 V/50-60 Hz | 2x0,75 | 1,6 | 0-45 | 62 |
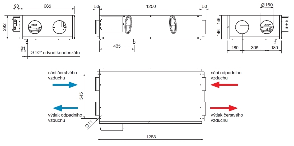
![]() | Skříň Skříň je samonosné konstrukce a je vyrobena z panelů o tloušťce 25 mm s izolací z polyuretanové pěny. Skříň a vnitřní části jsou vyrobeny ze speciálního materiálu ALUZINC®, který je vysoce odolný proti korozi a má atraktivní vzhled. Třída vzduchotěsnosti 2. Vstupní a výstupní hrdla o průměru 160 mm pro připojení potrubí. Revizní přístup je umístěn z boku skříně. | |
![]() | Ventilátory Jednotka obsahuje dva radiální ventilátory s dozadu zahnutými lopatkami s EC motorem. | |
![]() | Motor Motory jsou jednofázové EC s nízkou spotřebou, 230 V/50 Hz. Krytí IP54. Energetická třída B (EHR 300 N), respektive C (EHR 480 N). | |
![]() | Rekuperace Protiproudý hliníkový výměník s účinností 85,5 % (EHR 300 N), respektive 83 % (EHR 480 N). Výměník je přístupný po sejmutí bočního panelu. Jednotka obsahuje automatický obtok výměníku (Bypass). | |
![]() | Filtr V jednotce jsou osazeny dva deskové filtry s tlakovými spínači: F7 (ISO ePM2,5 70%) na sání čerstvého vzduchu a M5 (ISO ePM10 50%) na sání odpadního vzduchu. | |
![]() | El. připojení Připojovací svorkovnice je montována na boku jednotky. | |
![]() | Regulace Jednotka je dodávána včetně řídícího systému, který je k dispozici v provedeních CTR08-PH, EVO-PH nebo EVOD-PH-IP. Integrovaný řídící systém umožňuje snadnou záměnu jednotlivých řídících systémů i po montáži. • CTR08-PH - 3 úrovně nastavení rychlosti a možnost vypnutí jednotky. Automatické ovládání obtoku výměníku. Volitelně protimrazová ochrana. Indikace zanesení filtrů. Chybová hlášení. • EVO-PH - barevný podsvícený dotykový displej umožňující programování jednotky a sledování okamžitého statusu. Týdenní programování. Možnost ovládání pomocí externích senzorů kvality vzduchu. Indikace zanesení filtrů. Chybová hlášení. Volitelně možnost ovládání COP (konstantní tlak) nebo CAV (konstantní průtok). • EVOD-PH-IP - stejná charakteristika jako EVO-PH s přidanou možností komunikace pomocí komunikačního protokolu MODBUS s ETHERNETovým připojením. Volitelně je dostupné také připojení přes RS485. Umožňuje ovládání jednotky nadřazeným systémem, v takovém případě je interakce s jednotkou možná pomocí internetového prohlížeče. | |
![]() | Varianty Jednotka je dodávána ve 2 velikostech pro průtoky vzduchu 360 m3/hod a 480 m3/hod a je konfigurována v systému Plug&Play. | |
![]() | Montáž Jednotka je určena k horizontální montáži do vnitřních prostor, pod strop nebo na podlahu. Požadovaná teplota okolí je v rozmezí 0° až 45 °C. Jednotka musí být namontována tak, aby byl zajištěn dostatek prostoru pro otevření víka jednotky, výměnu filtrů, připojení odvodu kondenzátu na odpad se sifonovým pachovým uzávěrem a pro provádění periodických revizí elektroinstalace. | |
![]() | Pokyny Na přání je možno doplnit jednotku o externí (potrubní) vodní nebo elektrický ohřívač či o vodní chladič (zvláštní výbava). Před objednáním je nutné tuto možnost konzultovat. Díky vysoké účinnosti výměníku není většinou nutný dohřev. V oblastech, kde jsou teploty často pod -5 °C, se doporučuje na sání čerstvého vzduchu instalovat teplovodní výměník nebo elektrický předehřev vzduchu o odpovídajícím výkonu (např. MBE-AFP 160/0,7). Po základním nastavení montážní firmou nevyžaduje jednotka žádné další nastavování. Nároky na uživatele jsou minimální. Výměna filtru se doporučuje minimálně jednou ročně. Při projekci rekuperačních jednotek a jejich použití v objektech s plynovými spotřebiči kat. B (plynové kotle a ohřívače vody s otevřenou komorou) a nebo se zařízeními s otevřeným topeništěm na pevná či kapalná paliva s odtahem spalin do komína je nutno dbát příslušných odborných norem a zákonných ustanovení. | |
![]() | Informace Malá jednotka určená pro větraní bytové výstavby, dostupná ve 2 velikostech. Jednotka je určena pro trvalý provoz. | |
![]() | Energetická třída SEC • SEC A pro velikost 300 • SEC B pro velikost 480 | |
Akustický výkon LwA v oktávových pásmech v [dB(A)]
| Hz | 125 | 250 | 500 | 1000 | 2000 | 4000 | 8000 | LwAtot |
|---|---|---|---|---|---|---|---|---|
| do okolí - max. | 59,8 | 69,2 | 62,9 | 54,7 | 49,8 | 43,7 | 47,7 | 64,2 |
| do okolí - ref. | 61,3 | 69,2 | 61,9 | 51,3 | 46,6 | 42,1 | 45,8 | 63,4 |
| do potrubí - max. | 59,2 | 67,8 | 66,1 | 57,9 | 60,0 | 55,2 | 59,2 | 67,7 |
| do potrubí - ref. | 58,8 | 67,9 | 64,3 | 57,9 | 59,4 | 54,5 | 58,3 | 66,8 |
Doplňující vyobrazení
návrh jednotky, konzultace | minimální volný prostor okolo jednotky | funkce jednotlivých hrdel | CTR08-PH regulace s ručním ovládáním | |||
energetický štítek |
Příslušenství
AFR-EHR 300/480 N F7 (ISO ePM2,5 70%) náhradní filtr
AFR-EHR 300/480 N M5 (ISO ePM10 50%) náhradní filtr
AIRSENS-CO2 inteligentní čidlo CO2
AIRSENS-RH inteligentní čidlo RH
AIRSENS-VOC inteligentní čidlo VOC
MAA 160/600 tlumič hluku
MBE-AFP 160/0,7 aktivní protimrazová ochrana
MFLU 160 izolovaná flitrační kazeta s uhlíkovou vložkou
MSK 160 škrtící klapka
PER 160 žaluziová klapka
PRG 160 protidešťová žaluzie
RSK 160 zpětná klapka
SF-P 138 sifon podtlakový s uzávěrem


















