IDEO 325 Ecowatt větrací jednotka s rekuperací teplaRekuperační jednotky
Katalogový list | ![]() | Návod k použití | ![]() | Ekodesign | ![]() | 2D/3D CAD | 85.060 Kč |
Technické parametry
| příkon min/max [W] | napětí [V] | proud min/max [A] | akust. tlak* [dB(A)] | průtok min/max [m3/h] | hmotnost [kg] |
|---|---|---|---|---|---|
| 21/198 | 230 | 0,1/0,7 | 22,9/35,5 | 90 (45**)/325 | 45 |
* hodnota akustického tlaku do okolí, potrubí připojeno, vzdálenost 3 m, pro minimální/maximální průtok, ** při nepřítomnosti osob
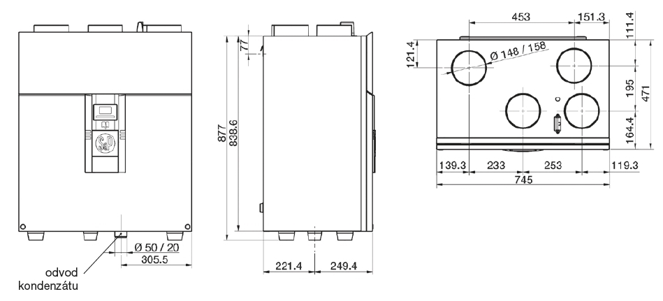
![]() | Skříň Skříň je z bíle lakovaného, pozinkovaného ocelového plechu. Vnitřní konstrukce je z vysoce kvalitního pěnového PP, což zajišťuje mimořádně nízké tepelné ztráty jednotky. Hrdla jsou umístěna na horní části skříně. Ze spodní části skříně je vyveden odvod kondenzátu. Obtok výměníku (Bypass) ovládaný servopohonem je standardně součástí jednotky. Jednotka je vybavena zabudovaným přijímačem pro bezdrátové ovládání jednotky, takže nejsou nutné kabelové elektroinstalační rozvody. Přijímací anténa je namontována horní části skříně, dosah 150 m na volné ploše. | |
![]() | Ventilátory Na sání odpadního vzduchu a sání čerstvého vzduchu je jednotka vybavena radiálními ventilátory s oběžnými koly s vysokou účinností. | |
![]() | Motor Motory jsou stejnosměrné s vysokou účinností a nízkou spotřebou, cca o 50 až 60 % nižší ve srovnání se střídavým motorem. | |
![]() | Rekuperace Protiproudý deskový výměník je z plastu s účinností 92 %. Je přístupný po demontáži čelní stěny jednotky. Pro letní provoz je jednotka vybavena automatickým obtokem výměníku. | |
![]() | Filtr Na sání odpadního vzduchu je deskový filtr třídy G4 (ISO coarse 65%), na sání čerstvého vzduchu je předfiltr G4 (ISO coarse 65%) a filtr M5 (ISO ePM10 50%), alternativně F7. Přístup k nim je po zvednutí servisního víka na čelní straně jednotky, k vyjmutí nejsou třeba žádné nástroje. | |
![]() | El. připojení Z jednotky je vyveden pětižilový 1,5 m dlouhý kabel. | |
![]() | Regulace teploty Jednotka je vybavena automatickým obtokem výměníku (Bypass). V letním období je vzduch v jednotce veden obtokem mimo výměník, čímž dochází k úspoře energie. | |
![]() | Regulace konstantního průtoku Jednotka je vybavena regulátorem konstantního průtoku. Hodnoty požadovaného průtoku se nastavují na ovladači s displejem. Tento druh regulace zajišťuje potřebný průtok i při změně tlakové ztráty vzduchových rozvodů (např. připojení a odpojení zemního výměníku nebo zvětšení tlakové ztráty znečištěných filtrů). Regulace je vybavena možností přepnutí do režimu zvýšeného větrání (BOOST) pomocí až 20 ks malých dálkových radiových ovladačů. Po stisknutí tlačítka BOOST dojde na dobu cca 10 minut ke zvýšení průtoku vzduchu na maximální hodnotu. Tlačítka BOOST lze s výhodou použít na WC, v koupelnách, kuchyních a společenských místnostech. Režimy nízkého a plného větrání lze naprogramovat libovolně pro každý den v týdnu, včetně víkendových programů sníženého větrání na cca 45 m3/h. | |
![]() | Hluk Jednotka je díky speciální konstrukci a použití plochých ventilátorů s EC motory mimořádně tichá. | |
![]() | Montáž Montáž ve svislé nebo s použitím IDEO 325 setu i v horizontální poloze. Montuje se na stěnu, minimálně 235 mm nad podlahou nebo na stojan. Při montáži na podlahu je nutné dodržet naklonění jednotky min. 10 %. Montáž vyžaduje volný prostor před jednotkou, aby bylo možné vyjmout filtry nebo otevřít víko a čistit výměník. Součástí dodávky je ocelový pozední rám. Připojení odvodu kondenzátu se provede přes sifonový pachový uzávěr na odpadní vedení nebo deštový svod. | |
![]() | Příslušenství • ED Flex System® kruhové vzduchové rozvody • ED Plano System® čtyřhranné vzduchové rozvody • programovatelný radiový dálkový ovladač s displejem • radiový dálkový ovladač BOOST (1 ks součástí dodávky) • Kit ANT 200 přídavná anténa pro dosah 200 m na otevřené ploše | |
![]() | Pokyny Díky vysoké účinnosti výměníku není většinou nutný dohřev. V oblastech, kde jsou teploty často pod -5 °C, se doporučuje na sání čerstvého vzduchu instalovat teplovodní výměník nebo elektrický předehřev vzduchu o odpovídajícím výkonu (např. MBE-AFP 160/0,7). Po základním nastavení montážní firmou nevyžaduje jednotka žádné další nastavování. Nároky na uživatele jsou minimální. Výměna filtru se doporučuje minimálně jednou ročně. Při projekci rekuperačních jednotek a jejich použití v objektech s plynovými spotřebiči kat. B (plynové kotle a ohřívače vody s otevřenou komorou) a nebo se zařízeními s otevřeným topeništěm na pevná či kapalná paliva s odtahem spalin do komína je nutno dbát příslušných odborných norem a zákonných ustanovení. Větrání musí také odpovídat normativním předpisům požární bezpečnosti staveb a nesmí být v rozporu s požárními předpisy. Tlakové ztráty systému nesmí překročit hodnotu, kontrolovanou vnitřní řídící jednotkou při zpuštění interního testu maximálně povolených tlakových ztrát. Překročení tlakových ztrát vede k poruchám jednotky. | |
![]() | Informace Plná elektronická regulace umožňuje přizpůsobení výkonu přesně požadavkům objektu. Jednotka je určena pro trvalý provoz. | |
![]() | Upozornění Rekuperační jednotka IDEO 325 Ecowatt je součástí programu Nová zelená úsporám pod kódem SVT5769. | |
Doplňující vyobrazení
orientační hodnoty průtoků a účinností | vnitřní uspořádání jednotky s protiproudovým výměníkem | příslušenství | konzultace a návrh jednotky | |||
energetický štítek |
Příslušenství
AFR-IDEO 325 F7 / G4 (ISO coarse 65%) sada filtrů
AFR-IDEO 325 G4 (ISO coarse 65%) náhradní filtr
AFR-IDEO 325 M5 (ISO ePM10 50%) / G4 (ISO coarse 65%) sada filtrů
EDF-CO2/RH-R kombin. prost. čidlo CO2 a RH s přep. kont.
EHR EPP 150 montážní set
EHR EPP 150/1000 potrubí
EHR EPP OS 150 oblouk 90°
HIG 2 hygrostat elektronický
IDEO 325 kit ANT 200 přídavná anténa
IDEO 325 radiový dálkový ovladač BOOST
MBE-AFP 160/0,7 aktivní protimrazová ochrana
MFLU 160 izolovaná flitrační kazeta s uhlíkovou vložkou
MSK-AFP 160 protimrazová ochrana
SF-P 138 sifon podtlakový s uzávěrem
SF-P 300 sifon podtlakový s uzávěrem
SQA senzor kvality vzduchu






Ekodesign














