NEMBUS 210 rekuperační jednotkaRekuperační jednotky
Katalogový list | ![]() | Návod k použití | ![]() | 2D/3D CAD | 46.979 Kč |
Technické parametry
| průtok (100 Pa) [m3/h] | napětí [V] | max. příkon [W] | příkon (volitelný předehřev) [W] | akust. tlak* [dB(A)] | max. účinnost [%] | hmotnost [kg] |
|---|---|---|---|---|---|---|
| 230 | 230 | 75 | 750 | 36 | 93 | 33 |
* akustický tlak měřený ve volném akustickém poli ve vzdálenosti 1,5 m, při 160 m3/h a 100 Pa
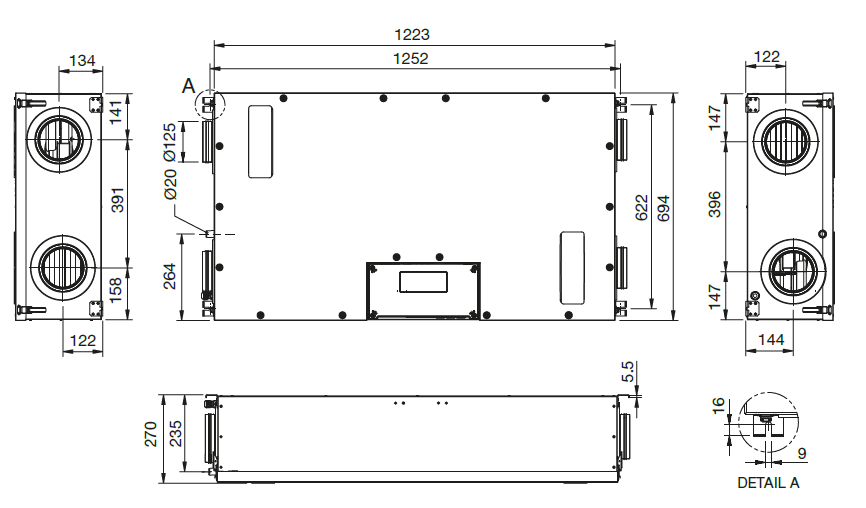
![]() | Skříň Skříň je z odolného EPP s vysokou hustotou. Čelní kovový panel a bočnice jsou opatřeny bílou práškovou barvou. Připojovací kruhová hrdla Ø 125 mm jsou osazena na bočních stranách skříně. Hrdla jsou opatřena dvoubřitým těsněním. Revizní přístup je z čelní strany jednotky. | |
![]() | Ventilátory Jednotka obsahuje dva radiální ventilátory s dozadu zahnutými lopatkami s EC motorem. | |
![]() | Motor Motory jsou jednofázové EC s nízkou spotřebou, 230 V / 50 Hz. Krytí IP21. | |
![]() | Rekuperace Protiproudý výměník s účinností až 93 %. Výměník je přístupný po otevření čelního panelu. | |
![]() | Filtr V jednotce jsou osazeny dva deskové filtry třídy G4 (ISO coarse 65%) na sání i odtahu. | |
![]() | El. připojení Jednotka je určena pro přímé napojení síťovou zástrčkou. Napájení 230 V / 50 Hz. | |
![]() | Regulace Jednotka je vybavena plně automatickým řídicím systémem s regulací průtoku podle relativní vlhkosti bez nutnosti jakéhokiliv dalšího zásahu do ovládání jednotky. Jednotka je osazena čtyřmi kombinovanými čidl teploty a relativní vlhkosti. Ve výkonových charakteristikách jsou vyznačeny charakteristiky pro jednotlivé otáčky. Designový drátový ovladač umožňuje nastavení otáček ventilátorů, manuální ovládání by-passu, zapnutí funkce BOOST, aktivaci automatického provozu a signalizaci zanesení filtrů. Další nastavení jednotky se provádějí pomocí DIP přepínačů a potenciometrů na řídicí desce jednotky po sejmutí předního krytu. Pro automatický režim je možno nastavit týdenní program. Systém protimrazové ochrany umožňuje provoz jednotky až do venkovní teploty -10 °C bez nutnosti dodatečného předehřevu či dohřevu. Jednotku NEMBUS 210 je možné doplnit o moduly NEMBUS-VOC a modul pro konstantní průtok vzduchu SABIK-NEMBUS-SF. Možnost připojení ke Connectair (cloud S&P). | |
![]() | Montáž Jednotka je určena k horizontální montáži pod strop nebo vertikální montáži na stěnu do vnitřních prostor. Požadovaná teplota okolí je v rozmezí 10 až 50 °C. Jednotka musí být namonto-vána tak, aby byl zajištěn dostatek prostoru pro sejmutí čela jednotky, výměnu filtrů, připojení odvodu kondenzátu na odpad se sifonovým pachovým uzávěrem SF-P 138 a pro provádění periodických revizí elektro-instalace. V případě montáže jednotky nad podhled je nutný revizní otvor pro obsluhu. | |
![]() | Příslušenství • ED Flex System® – kruhové vzduchové rozvody • NEMBUS-PH integrovaný předehřev • NEMBUS-VOC integrované čidlo VOC • SONOULTRA flexibilní tlumič hluku • SABIK-NEMBUS-SF modul pro konstantní průtok vzduchu • AFR-NEMBUS 210 set filtrů F7/G4 (ISO ePM1 70%/ISO coarse 65%) • AFR-NEMBUS 210 set filtrů G4/G4 (ISO coarse 65%) | |
![]() | Pokyny Jednotka není standardně vybavena vlastním ohřívačem. V případě požadavku na předehřev lze použít integrovatelný modul NEMBUS-PH nebo externí potrubní ohřívače MBE a MBW s odpovídajícími regulačními prvky. Po základním nastavení montážní firmou nevyžaduje jednotka žádné další nastavování. Výměna filtrů se doporučuje minimálně jednou ročně. Projektování vzduchotech-nického systému a jeho použití v objektech s plynovými spotřebiči kategorie B (plynové kotle a ohřívače vody s otevřenou komorou) nebo se zařízeními s otevřeným topeništěm na pevná či kapalná paliva s odtahem spalin do komína se řídí platnými předpisy. Větrání musí odpovídat normativním předpisům požární bezpečnosti staveb. | |
![]() | Informace Ucelený větrací systém s malou jednotkou určený pro větrání bytů, bytových domů a rodinných domů. Jednotka je konstruována pro trvalý provoz. | |
![]() | Upozornění Rekuperační jednotka NEMBUS 210 je součástí programu Nová zelená úsporám pod kódem SVT30864. | |
Doplňující vyobrazení
obsah balení | ovladač jednotky 90 × 90 × 20 mm | Connectair – vzdálená správa jednotky pomocí modulu SPCM (na dotaz) | konzultace a návrh jednotky |



















