CRVB-315 N Ecowatt IP44 roof fanStřešní ventilátory
Catalog sheet | ![]() | Service instructions | ![]() | 2D/3D CAD | 2 388.30 EUR |
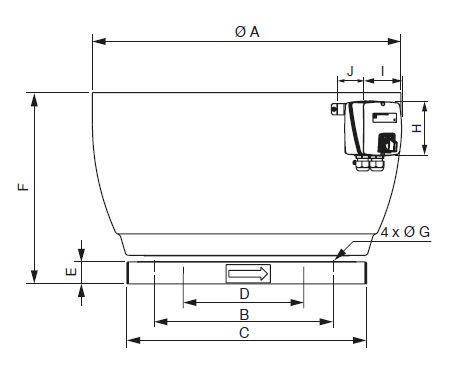
Technical parameters
| otáčky [min-1] | průtok [m3/h] | výkon [W] | proud [A] | napětí [V] | akust. tlak - sání* [dB(A)] | akust. tlak - výtlak* [dB(A)] | hmotnost [kg] | velikost příslušenství |
|---|---|---|---|---|---|---|---|---|
| 1700 | 2703 | 270 | 0,8 | 230 | 51 | 58 | 20 | 560 |
* akustický tlak měřen ve vzdálenosti 4 m, střešní ventilátor je nainstalován, měřeno v pracovních bodech výkonové křivky 2, 5, 8 a 11
![]() | Skříň Skříň je konstruována pro vertikální výfuk vzdušiny. Podstavec ventilátoru je z ocelového pozinkovaného plechu, galvanicky pokovené jsou i držáky, mřížka a šrouby. Stříška a skříň ventilátoru je z Al plechu. Motor ventilátoru je uložen v proudu vzduchu. Ochranná mřížka proti dotyku. | |
![]() | Oběžné kolo Oběžné kolo je radiální s dozadu zahnutými lopatkami. Vyrobené je z ocelového pozinkovaného plechu, je staticky a dynamicky vyváženo. | |
![]() | Motor Motor je stejnosměrný, speciální EC, s vnějším rotorem pro napájení 230 V/50 Hz. Motory jsou sériově vybaveny termopojistkou. Izolace motoru je třídy F. Trvalá pracovní teplota -20 až +40 ˚C. Ložiska mají tukovou náplň na dobu životnosti. Krytí IP44. | |
![]() | Směr otáčení Směr otáčení je možný pouze jedním směrem, ve smyslu šipky na skříni ventilátoru. Regulace ventilátoru neumožňuje změnu směru otáčení. | |
![]() | Svorkovnice Svorkovnice s revizním vypínačem je umístěna na skříni ventilátoru. Krytí je IP55. | |
![]() | Regulace otáček Regulace otáček se provádí pomocí potenciometru umístěného ve svorkovnici nebo externím ovládáním REB Ecowatt. Dále analogovým vstupem 0–10 V od čidla teploty, vlhkosti nebo CO2. | |
![]() | Hluk Hluk emitovaný ventilátorem je uveden v tabulkách. Hodnoty jsou měřeny ve vzdálenosti 4 m na straně výtlaku v horizontálním směru. | |
![]() | Upozornění Povolené kombinace el. příslušenství konzultujte na telefonu 602 679 469. | |
![]() | Uvádění do provozu Pro tento výrobek je dostupná odborná pomoc při instalaci a zprovoznění. | |
Additional pictures
podrobné technické parametry | podrobné akustické parametry | přiřazení velikosti příslušenství |
Acessories
AIRSENS-CO2 detector of CO2 concentration
AIRSENS-RH RH sensor
AIRSENS-VOC VOC sensor
CONTROL Ecowatt Basic controller for Ecowatt fans
CVF Ecowatt speed controller
DOS 450 Metal G roof stand with inner insulation
JAA 560 sound attenuator
JAE 560 flexible coupling
JBR 560 loose mounting flanges
JBS 560 20° stand for sloping roofs
JBS 560 30° stand for sloping roofs
JBS 560 40° stand for sloping roofs
JCA 560 backdraft shutter
JCM 560 backdraft shutter for actuators
JKR 560 tilting frame
JPA 560 adapter
REB Ecowatt speed controller
















