CVHT/H-25/25 IP55 smoke extract fanPožární radiální ventilátory
Catalog sheet | ![]() | Service instructions | ![]() | 2D/3D CAD | – | Toto zboží není možno objednat přes internet, kontaktujte naše obchodní oddělení nebo navštivte naše pobočky. |
Technical parameters
| otáčky min. [min-1] | otáčky max. [min-1] | příkon min. [kW] | příkon max. [kW] | průtok min. [m3/h] | průtok max. [m3/h] | hmotnost [kg] |
|---|---|---|---|---|---|---|
| 350 | 750 | 2,2 | 15 | 5000 | 42000 | 330 |
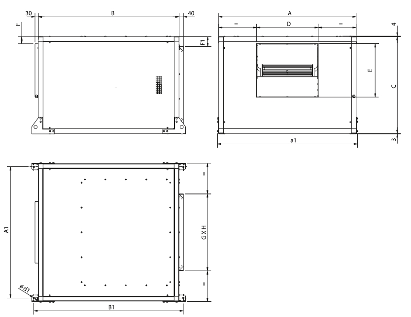
![]() | Skříň Skříň je z ocelového, galvanicky pozinkovaného plechu sendvičového provedení s hliníkovými rohovníky. Ve spodní části jsou montážní patky pro uchycení ventilátoru k podlaze nebo stropu. Provedení s horizontálním výtlakem CVHT-H nebo vertikálním výtlakem CVHT-V. Motor s řemenovým převodem je uložen uvnitř skříně a standardně je na pravém boku skříně při pohledu ze strany výtlaku, alternativně lze dodat motor nalevo (CVHT/H-TI nebo CVHT/V-TI). | |
![]() | Oběžné kolo Oběžné kolo je radiální s dopředu zahnutými lopatkami. Oběžné kolo je staticky a dynamicky vyváženo. | |
![]() | Motor Motor je asynchronní třífázový 230/400 V nebo 400 V dle výkonu. Řemenový převod s automatickým napínáním řemenu pro bezúdržbový provoz. Pracovní teplota je pro případ požáru 400 °C po dobu 2 h pro OTK, trvalá pracovní teplota 100 °C. Na zvláštní objednávku lze dodat dvouotáčkové motory 4/6 a 4/8 pólů. Krytí IP55, třída izolace F. | |
![]() | Svorkovnice Svorkovnice je umístěna přímo na motoru ventilátoru a je přístupná po sejmutí bočního víka skříně. Průchodka pro kabel je v rámu skříně. | |
![]() | Hluk Akustický tlak ve vzdálenosti 1,5 m na straně sání je uveden v grafech. Akustický výkon se vypočte z uvedené hodnoty pomocí korekcí v tabulce. | |
![]() | Montáž Montáž ve vodorovné poloze, výtlak lze zvolit podle provedení skříně (viz rozměrové náčrtky) vodorovně nebo svisle. | |
![]() | Pokyny Ventilátory jsou vhodné pro požární větrání schromažďovacích prostor, velkých prodejních ploch (supermarkety), hromadných garáží, kin, sportovních hal apod. | |
![]() | Upozornění Ventilátory jsou dodávány bez namontovaných přírub. V návaznosti na projekt je možno objednat volné příruby IBR se šířkou 20 nebo 30 mm. | |
Additional pictures















