OR 100 E-15 air curtainDveřní clony pro náročné interiéry
Catalog sheet | ![]() | Service instructions | ![]() | 2D/3D CAD | 7 815.84 EUR | Toto zboží není možno objednat přes internet, kontaktujte naše obchodní oddělení nebo navštivte naše pobočky. |
Technical parameters
| vzduchový výkon max./min. [m3/h] | příkon [kW] | proud [A] | napětí [V] | krytí | výkon (ohřívač) st. 3/2/1 [kW] | napětí (ohřívač) [V] | hmotnost [kg] | hmotnost s AK [kg] | akust. tlak* min./max. [dB(A)] | počet upevňovacích otvorů |
|---|---|---|---|---|---|---|---|---|---|---|
| 4800/1950 | 1,3 | 3,6 | 400 | IP20 | 24/18/12 | 400 | 86 | 100 | 46/62 | 4 |
* akustický tlak ve vzdálenosti 3 m při 300 m2 Sabin
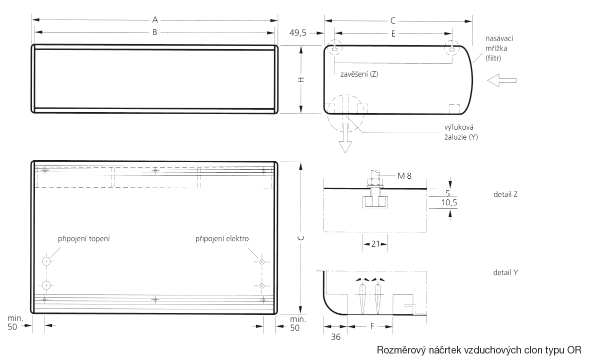
![]() | Skříň Skříň je z ocelového plechu laminovaného vrstvou umělé hmoty bez viditelných šroubových nebo nýtových spojů. Skříň se dodává v bílé barvě RAL 9010, dekorativní sací mřížka je opatřena práškovým lakem v odstínu RAL 7042, výdechový otvor je osazen tvarovanými lamelami a rámečkem z eloxovaného hliníku v přírodním odstínu. Na objednávku lze dodat v libovolném odstínu RAL (viz Varianty) Skříně se dodávají v několika typech podle způsobu montáže a požadovaného stínícího účinku (viz Způsoby montáže). Pro montáž do podhledu se dodávají nástavce nebo ozdobný rám. Zvláštním typem je ORBIS MEDIAN. Její skříň je obložena protihlukovou izolací, která v kombinaci se speciálními ventilátory významně snižuje hluk clony. Clony s vodním ohřívačem je vhodné objednat vč. regenerovatelného filtru. Pro clony s elektrickým ohřívačem se filtr nedodává. | |
![]() | Ventilátory Jsou použity vysoce výkonné oboustranně sací radiální ventilátory, pětiotáčkové nebo tříotáčkové (u clon s elektrickým ohřívačem) motory s termokontakty. Krytí IP20. | |
![]() | El. připojení Kabelové průchodky jsou umístěny v pravém konci skříně shora. Atypické pravé provedení je zrcadlově převráceno. | |
![]() | Regulace Clony s elektrickým ohřívačem do výkonu 30 kW se ovládají regulátorem UBT 2-E. Ovladač slouží k ručnímu nebo automatickému spouštění clony, nastavení otáček ve třech stupních, ovládání až 6 clon v různých pracovních režimech, připojení externího (dveřního) kontaktu a prostorového termostatu a nastavení doběhu až do 10 minut. Podrobně jsou možnosti tohoto regulátoru uvedeny v samostatném odstavci. Není-li ovladač předepsán, je clona dodána bez řídicího obvodu. Ventilátory a topné tyče ohřívače jsou vyvedeny pouze do svorkovnice. | |
![]() | Protimrazová ochrana V případě použití clony v montáži AWE je třeba chránit vodní ohřívače proti zamrznutí. K tomu slouží protimrazový termostat, který je namontován a zapojen přímo ve výrobě. Funkci protimrazové ochrany zajišťují regulátory UBT 2-E / UBT 2. | |
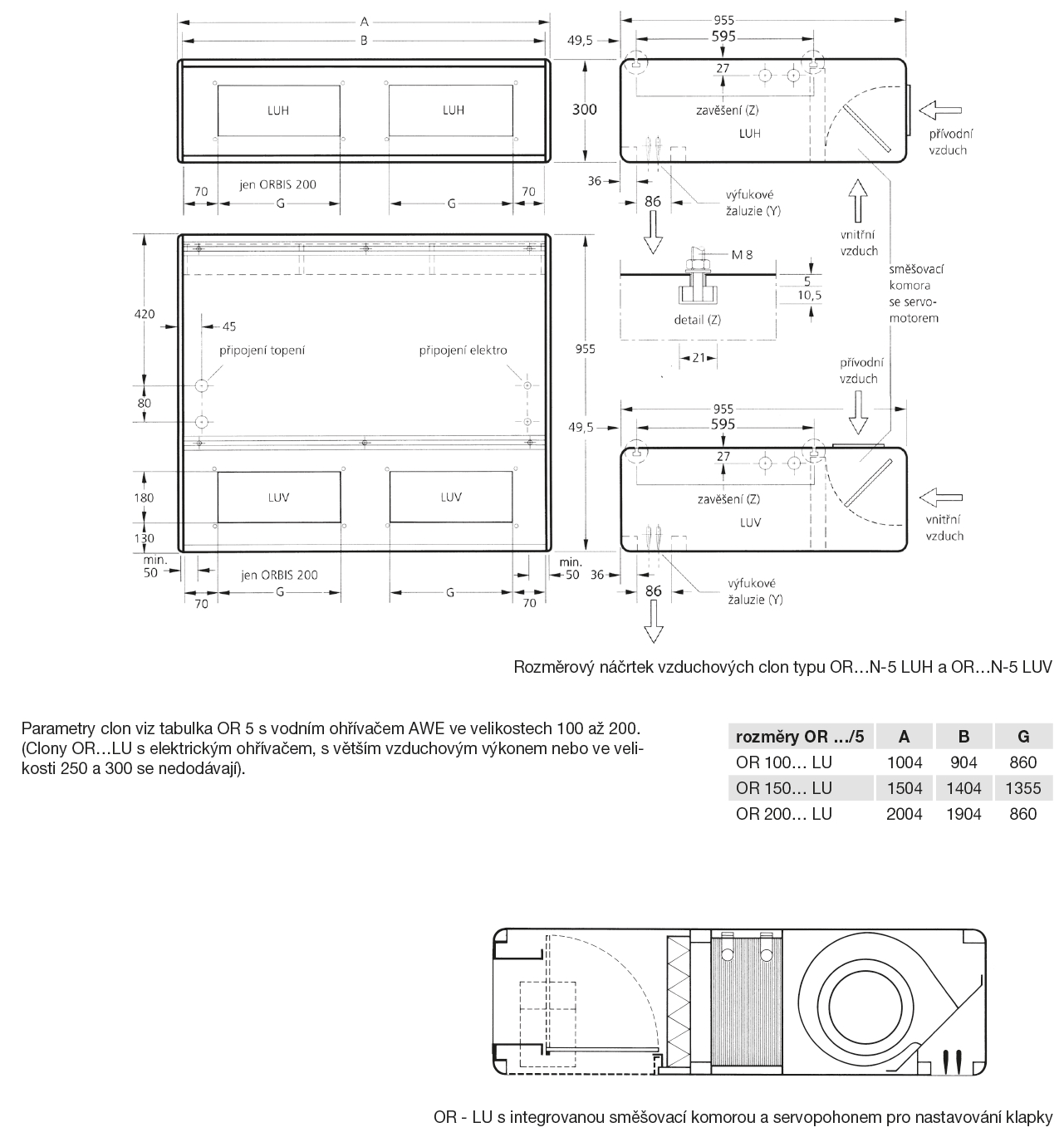
![]() | Varianty K dispozici jsou řady základních a speciálních provedení. Základní provedení Plně opláštěná clona s vodním nebo elektrickým ohřívačem, s pětiotáčkovým (vodní) nebo tříotáčkovým motorem (clony s elektrickým ohřívačem). Všechny tvary skříně a typy montáže jsou standardní. Speciální provedení • nestandardní barva – je možno volit barvy ze škály RAL samostatně pro skříň, sací mřížku i výtlak • pravé provedení – TUV přípojka vpravo, průchodky pro elektrické připojení vlevo • s přisáváním venkovního vzduchu LUV (přívod čerstvého vzduchu shora) nebo LUH (přívod čerstvého vzduchu z čela) – dodávají se pouze s vodním ohřívačem v montáži AWE, ve velikostech 100 až 200, ve výkonové řadě 5 • s výdechem pro karuselové dveře DRE (pouze s vodním ohřívačem, pro dveře o průměru 2,5 až 5 m; aplikaci konzultujte s technickým oddělením) • se zabudovaným regulačním uzlem ATR, který je sestaven z termostatického ventilu a pomocného čerpadla (pouze s vodním ohřívačem v montáži STE, ve velikostech 100 až 250 a výkonové řadě 5) • se zabudovaným regulačním uzlem TR, který je sestaven z termostatického ventilu (pouze s vodním ohřívačem v montáži STE, ve velikostech 100 až 250 a výkonové řadě 5) • clona s protihlukově izolovanou skříní MEDIAN (pouze s vodním ohřívačem;) | |
![]() | Montáž Montáž standardně – 1, 2, 3, 4, 5, 6, 7, 8, 9 a 13, speciální provedení 10, 11, 12 a 15. Podrobný montážní návod je dodáván s každou clonou. Varianty montáže jsou uvedeny dále. Clony se montují do volného prostoru i do podhledu, vodorovně i svisle. Vzduchovou cestu clonou je možno volit přímou, s úhlem 90˚ a nebo 180˚ (viz obrázky). | |
![]() | Příslušenství Uvedené příslušenství není součástí dodávky a je třeba jej zvlášť objednat. • UBT 2-E ovladač elektrických clon • UBT 2 ovladač vodních clon s displejem • datový kabel pro spojení UBT ovladače s clonou • termostatický nebo magnetický ventil pro clony s vodním ohřívačem (u provedení ATR a TR je termostatický ventil již zabudován ve skříni clony a je součástí dodávky) • protimrazový termostat zabudovaný pro clony s vodním ohřívačem se směrem proudění vzduchu AWE • vzduchový filtr pro clony s vodním ohřívačem • REED dveřní kontakt • RTR 6721 prostorový termostat • závěsy stropní nebo stěnové | |
Additional pictures





Service instructions








